2 Floor House Floor Plans – Creating your desire home can be an exciting yet challenging job. A cost-free home plan template is the excellent device to enhance the procedure, providing a foundation to picture and personalize your concepts without sustaining added expenses. In this overview, we explore just how to maximize these layouts, ensuring your layout straightens with your preferences and lifestyle.
Why Use a Free Home Plan Template?
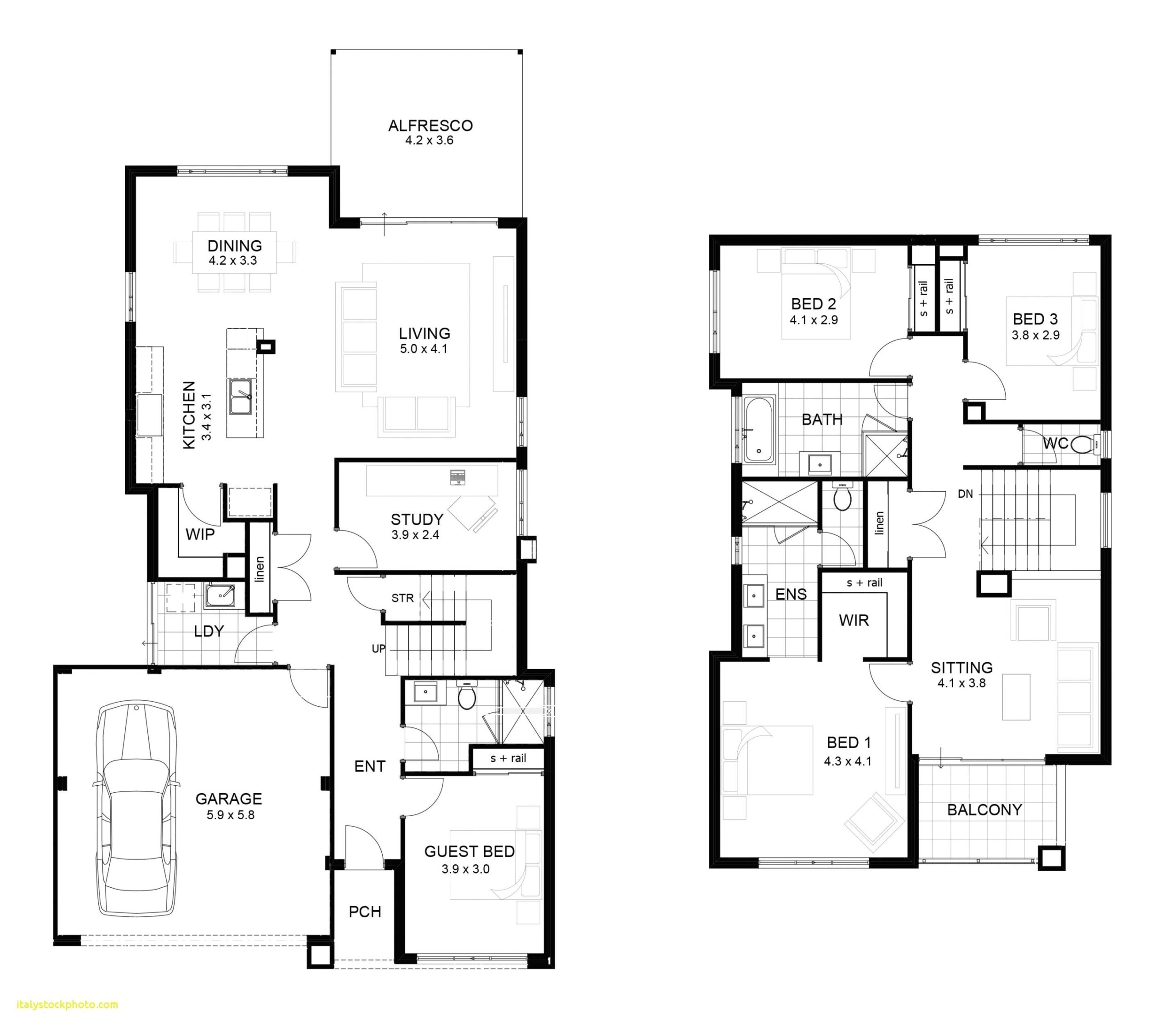
Visualize Your Ideas Effectively
A complimentary home plan template simplifies the style procedure by giving a structured structure. Whether you’re producing a modern-day format or a rustic hideaway, these layouts aid translate your ideas into a concrete plan. By using pre-designed layouts, you can successfully draw up room dimensions, furniture placement, and overall flow, ensuring no detail is overlooked.
Cost-efficient Solution for Aspiring Homeowners
Hiring an engineer or purchasing superior design software application can be expensive. Free home plan templates use an economical choice that does not jeopardize on top quality. With numerous styles and formats readily available online, you can discover options tailored to your special needs, conserving both time and money in the initial stages of home design.
Secret Features of High-Quality Home Plan Templates
Customization Options
A robust template offers adaptability to modify aspects such as area measurements, wall positionings, and window areas. Seek themes that allow smooth adjustments, empowering you to adjust the plan to your way of life and preferences. This feature guarantees the final style really feels personalized as opposed to generic.
Exact Scaling and Measurements
Precision is vital in home planning. Premium themes come with accurate scaling to aid you picture spaces properly. This makes certain furnishings fits completely, doors swing unobstructed, and traffic flow continues to be unimpeded. Such focus to information prevents pricey errors throughout construction.
Exactly how to Choose the Right Free Home Plan Template
Evaluate Your Space Requirements
Begin by evaluating your house’s requirements. Do you need an office, a sizable kitchen area, or added guest rooms? Recognizing these priorities will guide your choice of template, making sure the format fits both your present and future requirements.
Suit Your Design Aesthetic
Whether you prefer a minimalist visual, a conventional appearance, or something diverse, select a template that straightens with your vision. Numerous complimentary templates cater to different architectural styles, making it much easier to find one that resonates with your preference. 2 Floor House Floor Plans
Tips for Personalizing Your Free Home Plan Template
Incorporate Your Lifestyle
Think about just how you live day-to-day and allow that guide your adjustments. If you love entertaining, think about increasing typical locations like the living-room or kitchen. For those working from home, a specialized office is a must. Tailoring the template to suit your regimens guarantees maximum performance.
Utilize Technology for Enhanced Visualization
Make use of complimentary style tools and apps to modify your chosen template. Lots of systems use 3D making capacities, allowing you to view your style from different angles. This can help determine possible enhancements and ensure your format fulfills your assumptions. 2 Floor House Floor Plans
Where to Find Reliable Free Home Plan Templates
Online Architectural Platforms
Web sites devoted to design and home layout commonly provide a huge selection of complimentary design templates. These systems normally classify strategies based on dimension, design, and functions, streamlining your search for the best layout.
Community Forums and Design Blogs
Home improvement neighborhoods and blog sites are exceptional resources for free design templates. Members typically share their styles and suggestions, providing insights you might not find somewhere else. These forums likewise foster conversations that can motivate your task.
Verdict
Free home plan themes are a game-changer in the world of home design, providing a mix of comfort, cost-effectiveness, and customization. By choosing the appropriate template, leveraging innovation, and customizing the design to your requirements, you can bring your dream home to life. Explore the various sources offered and take the first step towards crafting a space that truly seems like home. 2 Floor House Floor Plans

