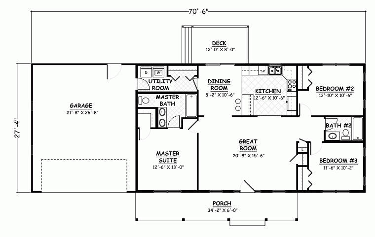
3 Bedroom Ranch House Floor Plans – Designing your desire home can be an interesting yet challenging job. A complimentary home plan template is the perfect tool to improve the procedure, providing a foundation to picture and customize your ideas without sustaining extra expenses. In this overview, we delve into how to make the most of these layouts, ensuring your layout lines up with your preferences and way of life.
Why Use a Free Home Plan Template?
Picture Your Ideas Effectively
A complimentary home plan template streamlines the design procedure by giving a structured framework. Whether you’re developing a contemporary layout or a rustic retreat, these design templates help equate your ideas into a substantial plan. By using pre-designed styles, you can effectively map out space dimensions, furnishings placement, and total flow, making sure no detail is overlooked.
Economical Solution for Aspiring Homeowners
Employing an architect or buying superior design software can be pricey. Free home plan templates offer an affordable option that doesn’t endanger on top quality. With numerous designs and formats readily available online, you can locate choices tailored to your one-of-a-kind requirements, conserving both money and time in the first stages of home design.
Key Features of High-Quality Home Plan Templates
Modification Options
A durable template provides adaptability to customize elements such as room dimensions, wall positionings, and home window locations. Try to find layouts that enable smooth adjustments, empowering you to adjust the plan to your way of living and preferences. This feature makes certain the last layout feels personalized as opposed to common.
Precise Scaling and Measurements
Precision is critical in home preparation. Top quality layouts included accurate scaling to help you envision spaces correctly. This makes certain furnishings fits completely, doors turn unobstructed, and website traffic circulation stays unblocked. Such interest to detail avoids costly mistakes throughout construction.
Just how to Choose the Right Free Home Plan Template
Assess Your Space Requirements
Begin by evaluating your home’s needs. Do you need a home office, a sizable kitchen, or additional guest rooms? Identifying these top priorities will certainly assist your option of template, making certain the layout fits both your present and future demands.
Match Your Design Aesthetic
Whether you prefer a minimalist visual, a conventional look, or something diverse, select a template that aligns with your vision. Lots of free design templates cater to numerous architectural styles, making it less complicated to locate one that resonates with your taste. 3 Bedroom Ranch House Floor Plans
Tips for Personalizing Your Free Home Plan Template
Include Your Lifestyle
Consider how you live daily and allow that overview your modifications. If you love enjoyable, take into consideration increasing usual locations like the living room or kitchen. For those functioning from home, a specialized workplace is a must. Tailoring the template to match your routines makes certain optimum performance.
Utilize Technology for Enhanced Visualization
Use free layout tools and apps to modify your selected template. Lots of systems use 3D rendering capacities, enabling you to view your style from different angles. This can help identify prospective renovations and ensure your design fulfills your assumptions. 3 Bedroom Ranch House Floor Plans
Where to Find Reliable Free Home Plan Templates
Online Architectural Platforms
Web sites committed to architecture and home design usually provide a plethora of totally free layouts. These systems usually classify strategies based on size, design, and functions, streamlining your search for the best layout.
Area Forums and Design Blogs
Home improvement communities and blogs are exceptional sources absolutely free themes. Members often share their layouts and pointers, using understandings you could not discover somewhere else. These online forums additionally cultivate discussions that can inspire your project.
Conclusion
Free home plan templates are a game-changer worldwide of home style, supplying a mix of ease, cost-effectiveness, and personalization. By picking the ideal template, leveraging technology, and tailoring the design to your requirements, you can bring your desire home to life. Check out the various sources readily available and take the primary step towards crafting a room that really seems like home. 3 Bedroom Ranch House Floor Plans

