Five Bedroom Ranch House Plans

Five Bedroom Ranch House PlansCreating your dream home can be an amazing yet difficult job. A complimentary home plan template is the best device to simplify the process, supplying a structure to picture and personalize your concepts without sustaining extra costs. In this overview, we delve into how to make the most of these layouts, guaranteeing your style straightens with your preferences and way of living.

Why Use a Free Home Plan Template?

Visualize Your Ideas Effectively

A totally free home plan template simplifies the layout procedure by providing a structured structure. Whether you’re creating a modern-day design or a rustic retreat, these themes assist translate your ideas right into a concrete plan. By utilizing pre-designed styles, you can effectively draw up space dimensions, furnishings positioning, and overall circulation, guaranteeing no information is forgotten.

Cost-Effective Solution for Aspiring Homeowners

Employing an architect or purchasing exceptional style software application can be costly. Free home plan layouts provide an economical alternative that does not endanger on quality. With numerous designs and layouts readily available online, you can discover options customized to your unique needs, conserving both time and money in the preliminary phases of home layout.

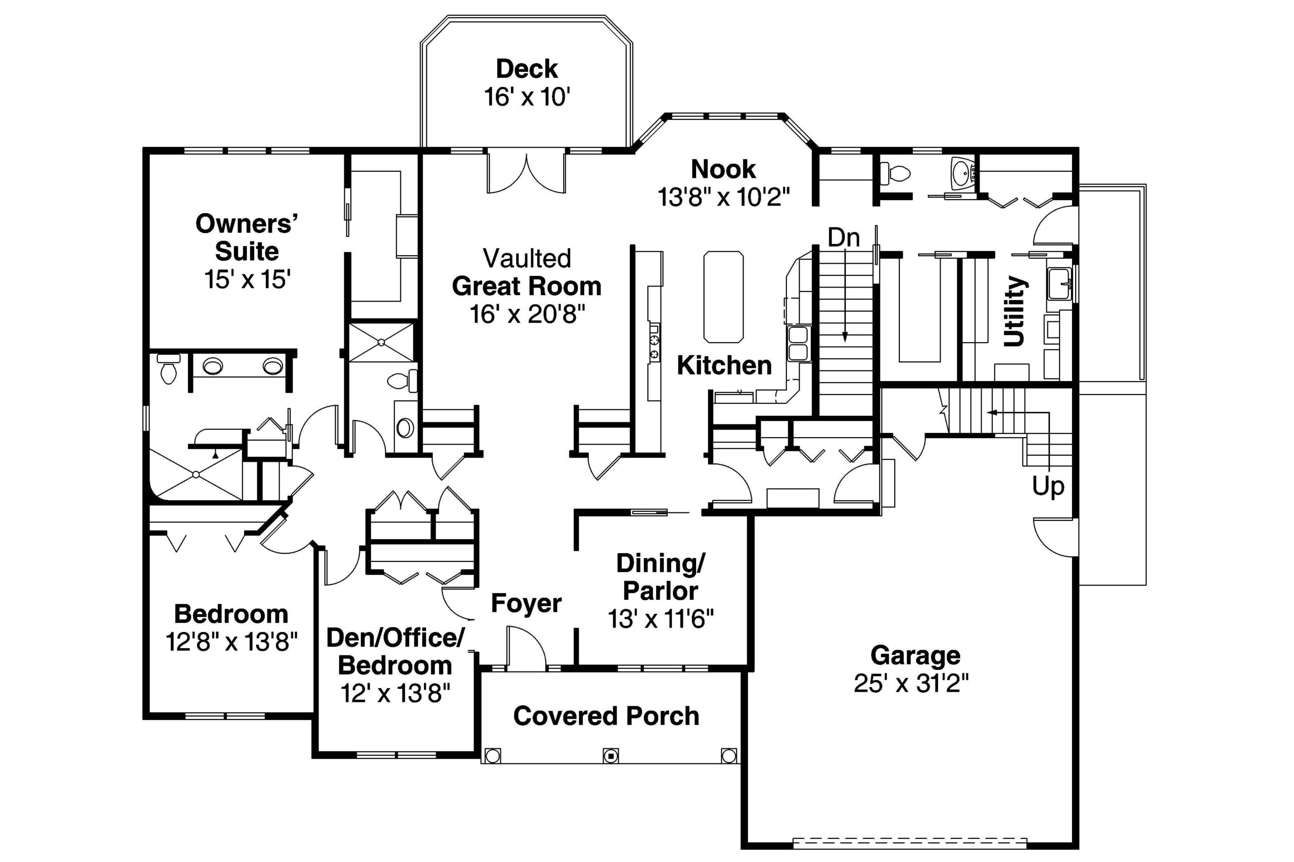
87 Gorgeous 5 Bedroom Ranch House Plan You Won t Be Disappointed

Key Features of High-Quality Home Plan Templates

Customization Options

A robust template offers flexibility to change elements such as area measurements, wall placements, and home window places. Search for design templates that permit seamless changes, equipping you to adapt the plan to your way of life and preferences. This attribute guarantees the last design feels personalized rather than common.

Precise Scaling and Measurements

Precision is vital in home preparation. Top quality templates included accurate scaling to assist you imagine areas appropriately. This makes sure furniture fits perfectly, doors swing unhampered, and traffic flow remains unimpeded. Such focus to information prevents costly mistakes during construction.

House Plans 5 Bedroom Ranch A Guide House Plans

How to Choose the Right Free Home Plan Template

Evaluate Your Space Requirements

Begin by reviewing your household’s needs. Do you need a home office, a roomy kitchen, or additional guest rooms? Identifying these priorities will certainly direct your option of template, making certain the layout fits both your current and future needs.

Suit Your Design Aesthetic

Whether you choose a minimal aesthetic, a conventional look, or something eclectic, select a template that aligns with your vision. Numerous cost-free templates cater to various architectural styles, making it simpler to discover one that resonates with your taste. Five Bedroom Ranch House Plans

Five Bedroom Ranch House Plans For Achieving The Perfect Balance Of

Tips for Personalizing Your Free Home Plan Template

Integrate Your Lifestyle

Think of just how you live everyday and let that guide your alterations. If you enjoy enjoyable, think about broadening common locations like the living-room or kitchen area. For those functioning from home, a specialized office space is a must. Customizing the template to suit your routines makes certain maximum capability.

Leverage Technology for Enhanced Visualization

Use free style tools and apps to edit your selected template. Many platforms use 3D rendering capacities, permitting you to see your style from various angles. This can help recognize possible enhancements and guarantee your design fulfills your assumptions. Five Bedroom Ranch House Plans

Where to Find Reliable Free Home Plan Templates

Online Architectural Platforms

Internet sites dedicated to design and home style often supply a variety of free themes. These platforms generally classify plans based on dimension, design, and features, simplifying your search for the perfect layout.

Area Forums and Design Blogs

Home improvement communities and blog sites are outstanding resources completely free templates. Participants typically share their styles and ideas, providing insights you could not find somewhere else. These forums likewise promote conversations that can inspire your job.

Final thought

Free home plan design templates are a game-changer worldwide of home style, offering a mix of convenience, cost-effectiveness, and customization. By picking the appropriate template, leveraging technology, and customizing the format to your needs, you can bring your dream home to life. Discover the countless sources offered and take the primary step toward crafting a space that truly seems like home. Five Bedroom Ranch House Plans

Leave a Comment