30 X 50 House Plans

30 X 50 House PlansDesigning your desire home can be an interesting yet difficult task. A complimentary home plan template is the best device to improve the process, providing a structure to envision and personalize your concepts without sustaining additional costs. In this overview, we explore just how to make the most of these templates, ensuring your design straightens with your choices and lifestyle.

Why Use a Free Home Plan Template?

Envision Your Ideas Effectively

A free home plan template streamlines the layout procedure by supplying a structured framework. Whether you’re developing a contemporary format or a rustic resort, these layouts aid convert your concepts right into a concrete plan. By using pre-designed layouts, you can successfully map out area dimensions, furniture placement, and general flow, making certain no information is ignored.

Cost-efficient Solution for Aspiring Homeowners

Hiring a designer or acquiring exceptional design software can be expensive. Free home plan design templates use a cost-effective alternative that does not jeopardize on quality. With numerous styles and layouts offered online, you can locate alternatives customized to your one-of-a-kind requirements, saving both money and time in the initial stages of home design.

30 X 50 Ranch House Plans

Secret Features of High-Quality Home Plan Templates

Customization Options

A robust template uses flexibility to change elements such as area measurements, wall positionings, and home window areas. Seek themes that permit smooth changes, equipping you to adjust the plan to your lifestyle and choices. This attribute ensures the final design feels personalized as opposed to generic.

Precise Scaling and Measurements

Accuracy is important in home preparation. Top quality themes come with accurate scaling to aid you envision spaces correctly. This makes certain furnishings fits flawlessly, doors swing unobstructed, and web traffic circulation stays unobstructed. Such focus to information prevents expensive blunders during building and construction.

30 50 House Plans Architego

How to Choose the Right Free Home Plan Template

Evaluate Your Space Requirements

Begin by assessing your home’s needs. Do you need an office, a roomy cooking area, or additional guest rooms? Recognizing these priorities will direct your selection of template, ensuring the layout fits both your current and future needs.

Suit Your Design Aesthetic

Whether you favor a minimalist visual, a typical appearance, or something eclectic, pick a template that straightens with your vision. Several cost-free themes accommodate different building styles, making it simpler to find one that reverberates with your taste. 30 X 50 House Plans

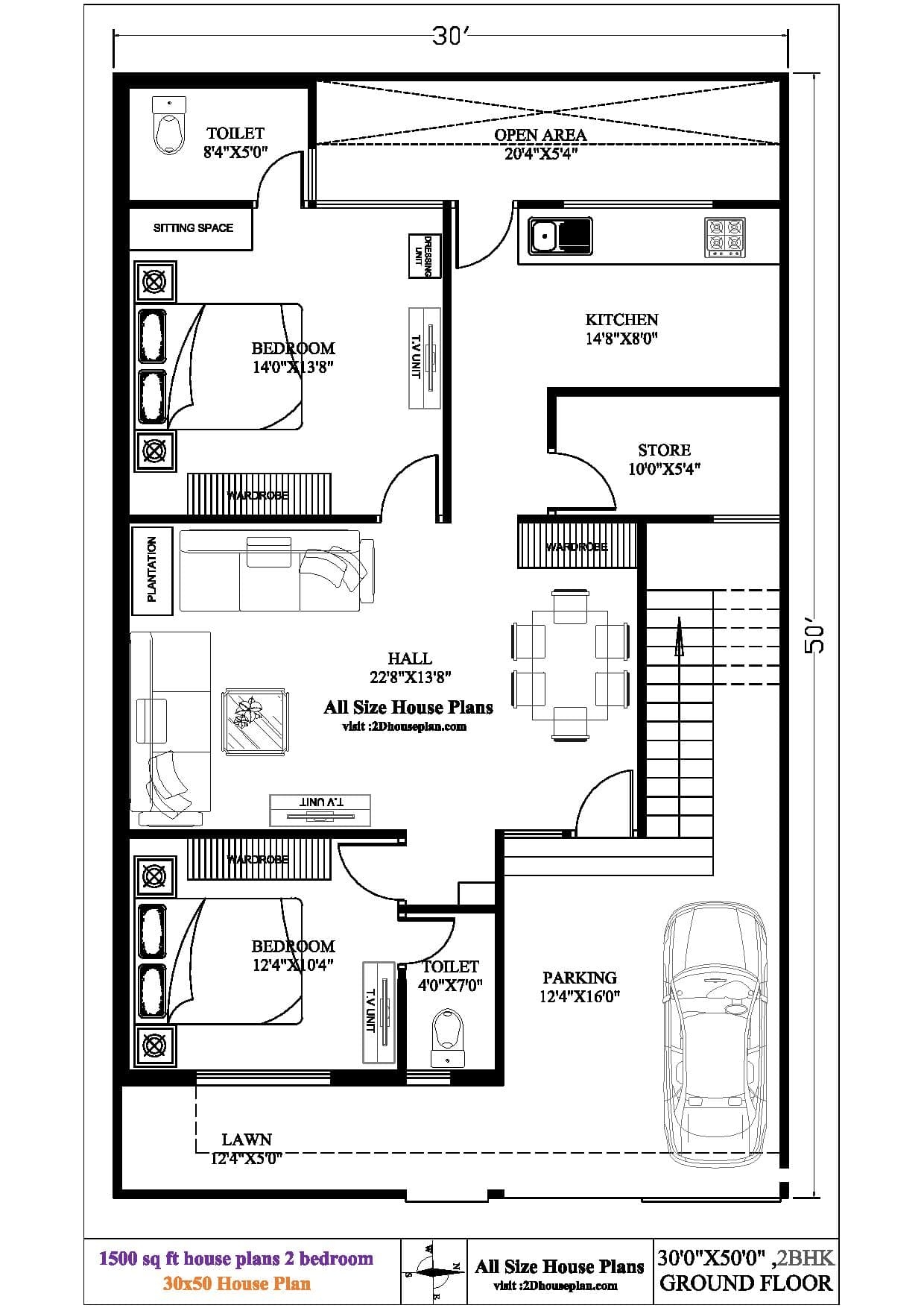
30X50 House Plan 2bhk 3bhk North East Vastu Plan 1500 Sqft

Tips for Personalizing Your Free Home Plan Template

Incorporate Your Lifestyle

Think of how you live everyday and let that guide your alterations. If you like enjoyable, consider expanding common locations like the living-room or cooking area. For those functioning from home, a devoted workplace is a must. Customizing the template to match your regimens ensures maximum performance.

Leverage Technology for Enhanced Visualization

Make use of free layout tools and apps to edit your selected template. Several platforms offer 3D providing capabilities, enabling you to watch your design from different angles. This can help identify potential improvements and ensure your design satisfies your expectations. 30 X 50 House Plans

Where to Find Reliable Free Home Plan Templates

Online Architectural Platforms

Websites devoted to architecture and home design usually offer a wide variety of complimentary themes. These systems commonly categorize strategies based upon size, design, and functions, streamlining your look for the perfect format.

Area Forums and Design Blogs

Home improvement areas and blog sites are excellent sources completely free layouts. Members typically share their designs and suggestions, providing insights you may not find in other places. These online forums also promote conversations that can influence your project.

Final thought

Free home plan templates are a game-changer worldwide of home design, offering a blend of comfort, cost-effectiveness, and modification. By picking the right template, leveraging innovation, and tailoring the design to your requirements, you can bring your dream home to life. Check out the various sources offered and take the primary step toward crafting a space that genuinely seems like home. 30 X 50 House Plans

Leave a Comment